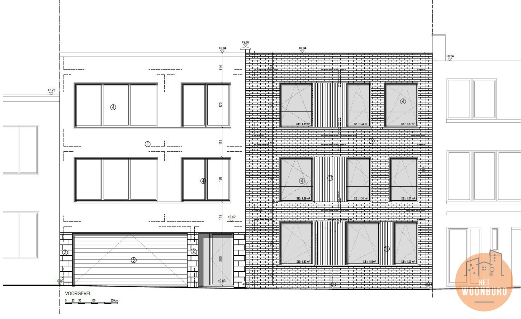
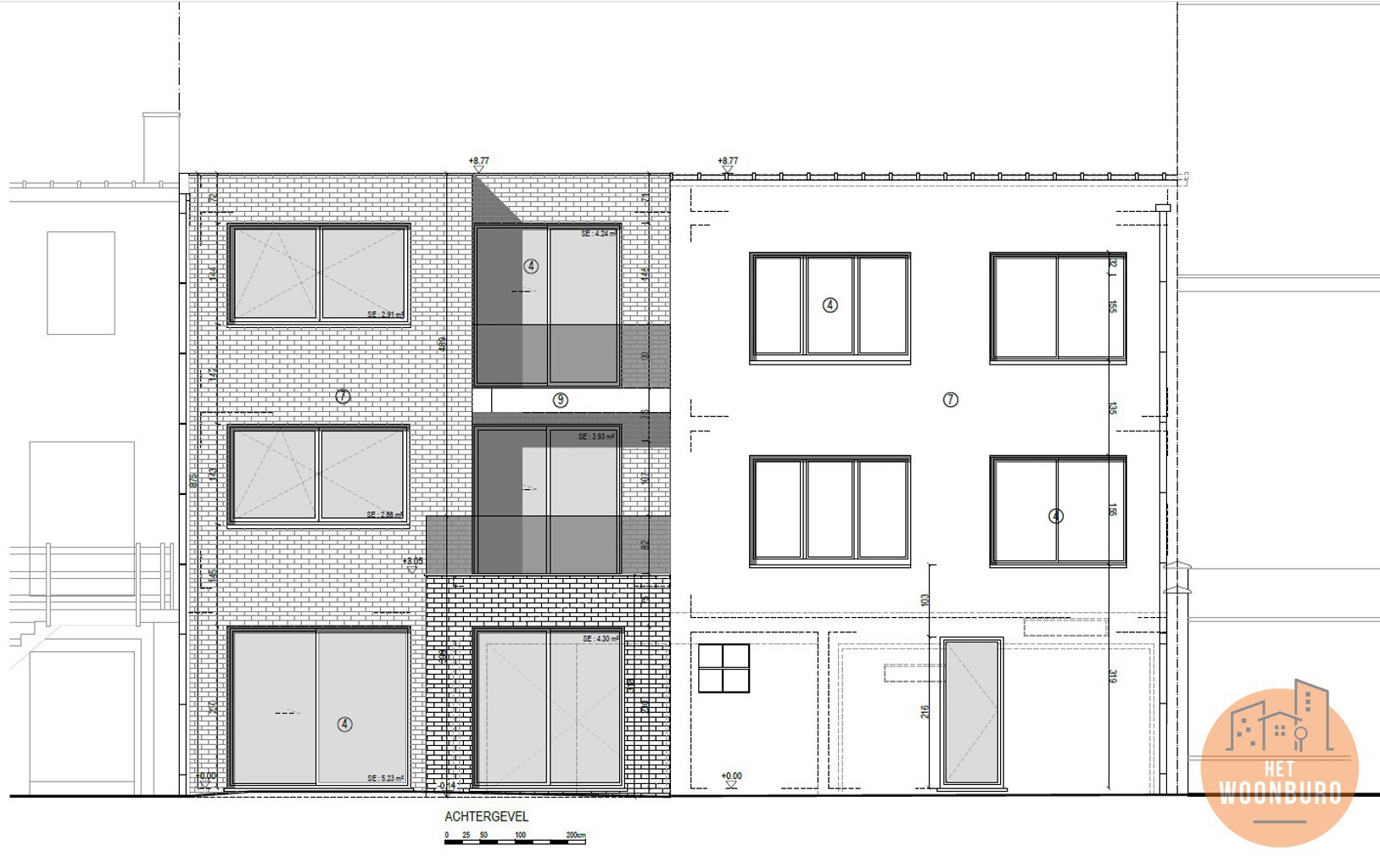
Beschrijving
Voor dit perceel werd reeds een vergunning afgeleverd voor de bouw van een appartementsgebouw met 3 appartementen.
Op het gelijkvloers en deel van de eerste verdieping: een appartement met inkomhal - ruime leefruimte met eetplaats - keuken - berging - badkamer - toilet - 3 slaapkamers waarvan 1 met douchekamer - terras en privatieve tuin.
Op de eerste verdieping: een studio van +- 44m² met slaaphoek en terras.
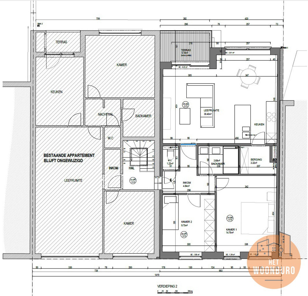
Op de tweede verdieping: een appartement met ruime leefruimte en eetplaats met toegang tot terras en zicht op de tuin - een keuken - een berging - badkamer - toilet - 2 slaapkamers (+- 15m² en 10m²).
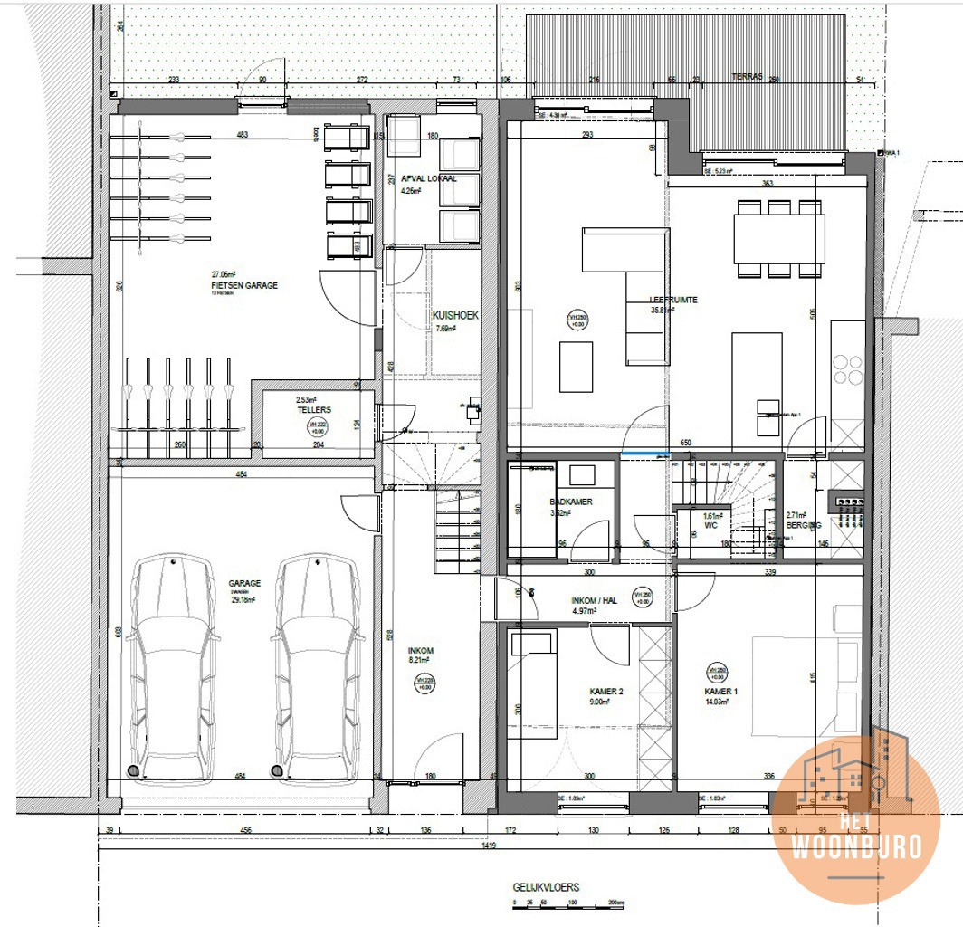
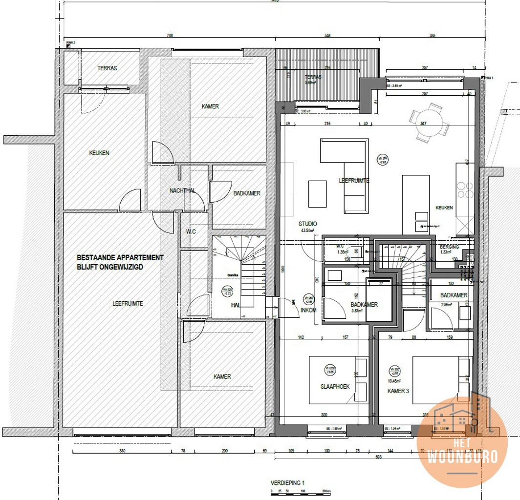
Het opbrengstgebouw omvat op het gelijkvloers: een dubbele inpandige garage vooraan en achteraan het gebouw - inkomhal - 2 kelders en een gemeenschappelijke tuin.
Op de eerste en tweede verdieping van het gebouw bevindt zich telkens één appartement met volgende indeling: inkomhal - ruime leefruimte - keuken met aansluitend terras achteraan - toilet - nachthal - 2 slaapkamers (+-14m² en 11m²) en een badkamer.
EPB appt 1eV: label E+ - 228 kWh/(m² per jaar) - CO2 : 45
EPB appt 2eV: label G - 417 kWh/(m² per jaar) - CO2 : 83
Elk appartement beschikt over een individuele cv-ketel op aardgas en individuele tellers voor water, gas en elektriciteit.
Geen lift, geen syndicus.
Gelegen in een residentiële buurt met winkels, scholen, openbaar vervoer en belangrijke verbindingswegen (RO) in de nabije omgeving.
Interessant opbrengstproject met mogelijkheid op goede huuropbrengst.
Contacteer ons snel voor een bezoek of voor meer informatie: Het Woonburo: 02/582.55.83 - info@hetwoonburo.be - www.hetwoonburo.be
Details
Financieel
Algemeen
Afmetingen
Energie
Geografische ligging
Indeling
Stedenbouwkundige info
Documenten
- TK Adolphe Willemynstraat 41 - Bodemattest Gebouw (nieuw).pdf
- TK Adolphe Willemynstraat 41 - Bodemattest Grond (nieuw).pdf
- TK Adolphe Willemynstraat 41 - Bodemattest Warmoes tuin (nieuw).pdf
- TK Adolphe Willemynstraat 41 - S.I. grond (nieuw).pdf
- TK Adolphe Willemynstraat 41 - S.I. tuin (nieuw).pdf
- TK Adolphe Willemynstraat 41 - S.I. woning (nieuw).pdf
- TK A. Willemyns 41 - 1e v. - Keuring elek.pdf
- TK A. Willemynsstraat 41 - 2e v. - Keuring elek.pdf
- TK Adolphe Willemynstraat 41 - Keuring elek gemene delen.pdf
- TK A. Willemyns 41 - 1e v. - PEB.pdf
- TK A. Willemynsstraat 41 - 2e v. - EPC tem 2033_04_13.pdf









